Новый заказ

+7 831 235-25-30

ежедневно с 09:00 до 21:00

Отдел монтажа и доставки

+7 920 055-48-36

Пн. - пт. с 08:00 до 17:00

Гарантийный отдел

+7 920 055-48-50

Пн. - пт. с 08:00 до 17:00

Остекление коттеджа и бани - 9 нестандартных конструкций

  • стоимость

    300 000

  • конструкций

    9

  • дата

    14.04.2020

Адрес: 603152, Новинки, ул.Нагорная, д. 49

Клиент: Общество с ограниченной ответственностью «ТРИУМФ НН»

Описание и материалы

Используемые материалы и подробное описание объекта
  • Тип объекта

    коттедж

  • Теги товаров

    балконные двери ПВХ, входные двери ПВХ, двухстворчатые окна ПВХ, одностворчатые окна ПВХ, прямой балкон ПВХ

  • Используемые материалы

    Deceuninck Фаворит Спейс, фурнитура: Siegenia Titan, Vorne, стеклопакет(ы): 42 мм, 2 камеры, оконная москитная сетка на алюминиевых закладных (для распашного окна)

  • Объем услуг

    "под ключ"

  • Ближайший офис

    Нижний Новгород (Шоу-рум на пр. Гагарина (Н. Новгород))

  • Номер договора

    69356

Смета конструкций и работ

Описание позиции Схема Количество Цена
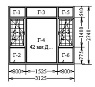
1. Окно из восьми элементов с двумя поворотно-откидными створками Deceuninck Фаворит Спейс,ламинация профиля Махагон КВЕ, цвет с улицы UJ301-Z8, цвет со стороны помещения- белый, двухкамерный 42 мм (4-16-4-14-4) (6-12-6-12-6) Energy Light, Siegenia Titan. Подставочный профиль Thyssen Спейс. Сетка москитная на алюминиевых закладных, цвет МС RAL 8017- 2 шт. Окно из восьми элементов с двумя поворотно-откидными створками Deceuninck Фаворит Спейс 1 46 051,00 рублей
2. Двухстворчатое глухое окно Deceuninck Фаворит Спейс,ламинация профиля Махагон КВЕ, цвет с улицы UJ301-Z8, цвет со стороны помещения- белый, двухкамерный 42 мм (4-16-4-14-4) (6-12-6-12-6) Energy Light. Подставочный профиль Thyssen Спейс. Двухстворчатое глухое окно Deceuninck Фаворит Спейс 1 23 439,00 рублей
3. Пятистворчатое глухое окно Deceuninck Фаворит Спейс,ламинация профиля Махагон КВЕ, цвет с улицы UJ301-Z8, цвет со стороны помещения- белый, двухкамерный 42 мм (4-16-4-14-4) Energy Light. Подставочный профиль Thyssen Спейс. Соединитель Thyssen. Усиление. Пятистворчатое глухое окно Deceuninck Фаворит Спейс 1 35 825,00 рублей
4. Дверь входная с широкой створкой Deceuninck Фаворит Спейс,ламинация профиля Махагон КВЕ, цвет с улицы UJ301-Z8, цвет со стороны помещения- белый, двухкамерный вклеенный 42 мм (4-16-4-14-4) Energy Light, нажимной гарнитур раздельный. Подставочный профиль Thyssen Спейс. Дверь входная с широкой створкой Deceuninck Фаворит Спейс 1 46 444,00 рублей
5. Двухстворчатое глухое окно Deceuninck Фаворит Спейс,ламинация профиля Махагон КВЕ, цвет с улицы UJ301-Z8, цвет со стороны помещения- белый, двухкамерный 42 мм (4-16-4-14-4) (6-12-6-12-6) Energy Light. Подставочный профиль Thyssen Спейс. Двухстворчатое глухое окно Deceuninck Фаворит Спейс,ламинация профиля Махагон КВЕ 1 22 945,00 рублей
6. Окно из семи элементов с двумя поворотно-откидными створками Deceuninck Фаворит Спейс,ламинация профиля Махагон КВЕ, цвет с улицы UJ301-Z8, цвет со стороны помещения- белый, двухкамерный 42 мм (4-16-4-14-4) (6-12-6-12-6) Energy Light, Siegenia titan. Подставочный профиль Thyssen Спейс. Сетка москитная на алюминиевых закладных, цвет МС RAL 8017- 2 шт. Окно из семи элементов с двумя поворотно-откидными створками Deceuninck Фаворит Спейс 1 47 525,00 рублей
7. Дверь балконная двухстворчатая Deceuninck Фаворит Спейс,ламинация профиля Махагон КВЕ, цвет с улицы UJ301-Z8, цвет со стороны помещения- белый, двухкамерный вклеенный 42 мм (4-16-4-14-4) Energy Light, Siegenia titan. Дверь балконная двухстворчатая Deceuninck Фаворит Спейс,ламинация профиля Махагон КВЕ 1 25 588,00 рублей
8. Одностворчатое окно с поворотно-откидной створкой Deceuninck Фаворит Спейс,ламинация профиля Махагон КВЕ, цвет с улицы UJ301-Z8, цвет со стороны помещения- белый, двухкамерный 42 мм (4-16-4-14-4) Energy Light, VORNE, приподниматель VORNE, микропроветриватель VORNE. Подставочный профиль Thyssen Спейс. Одностворчатое окно с поворотно-откидной створкой Deceuninck Фаворит Спейс 1 5 684,00 рублей
9. Двухстворчатое окно с поворотно-откидной створкой Deceuninck Фаворит Спейс,ламинация профиля Махагон КВЕ, цвет с улицы UJ301-Z8, цвет со стороны помещения- белый, двухкамерный 42 мм (4-16-4-14-4) Energy Light, VORNE, приподниматель VORNE, микропроветриватель VORNE. Подставочный профиль Thyssen Спейс. Двухстворчатое окно с поворотно-откидной створкой Deceuninck Фаворит Спейс 1 8 121,00 рублей
10. Услуги монтажа пакета "Lite" для всех конструкций 9 38 378,00 рублей

300 000 руб.

Начните с бесплатной
консультации — всего 3 минуты !

ОкнаКомпас штрих серой краски ОкнаКомпас штрих оранжевой краски
* обязательное поле
* неверный формат телефона
Перезвоните мне!

Спасибо за доверие! Заявка успешно отправлена. Наш менеджер перезвонит в ближайшее время.

На сервере произошла ошибка — запрос не обработан. Попробуйте еще раз.

Попробуйте еще раз
Хотите
бесплатного
замерщика
на завтра
по вашему
адресу?
осталось 8 мест
Записаться